ATELIER
PROJEKTY A REALIZACE
HISTORIE
KONTAKT
PROJEKTY A REALIZACE
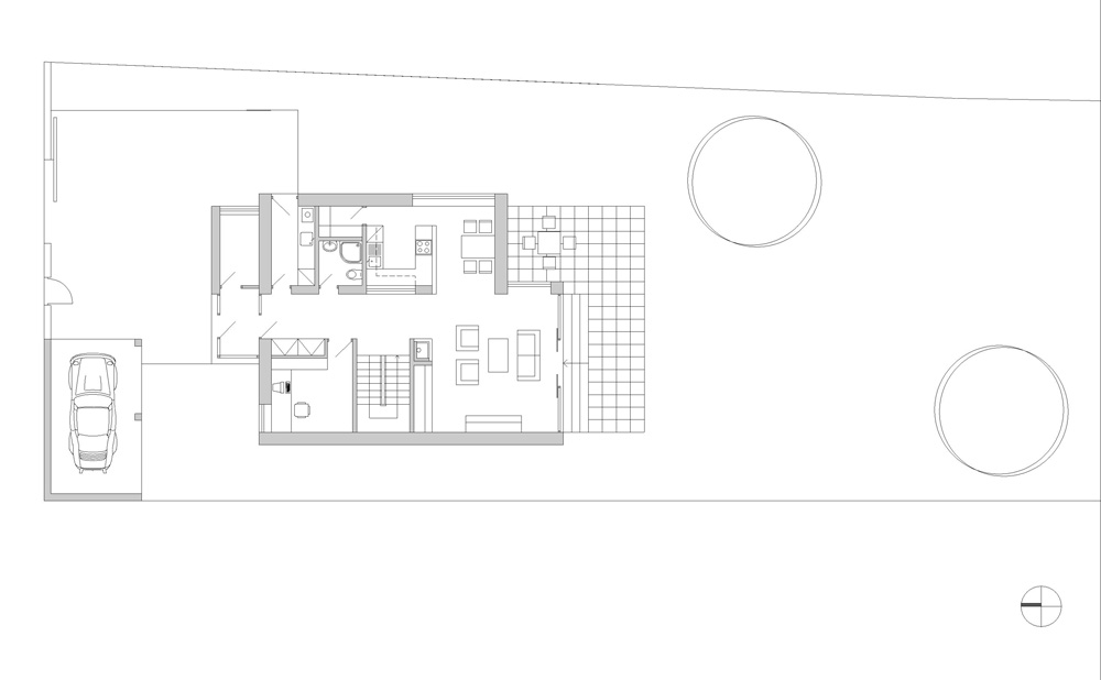
STUDIE NOVOSTAVBY RD ŽELEŠICE
Dokumentace
(3)
AUTOR:
Ing. arch. Jiří Pelikán
INVESTOR:
Manželé Berkovi
STUDIE:
2003