ATELIER
PROJEKTY A REALIZACE
HISTORIE
KONTAKT
PROJEKTY A REALIZACE
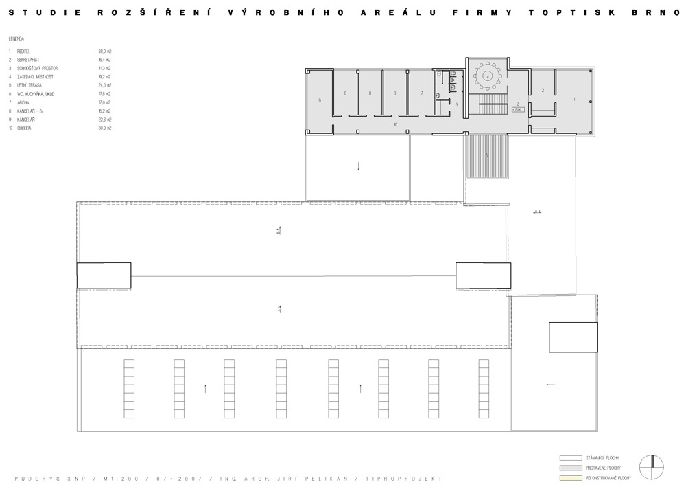
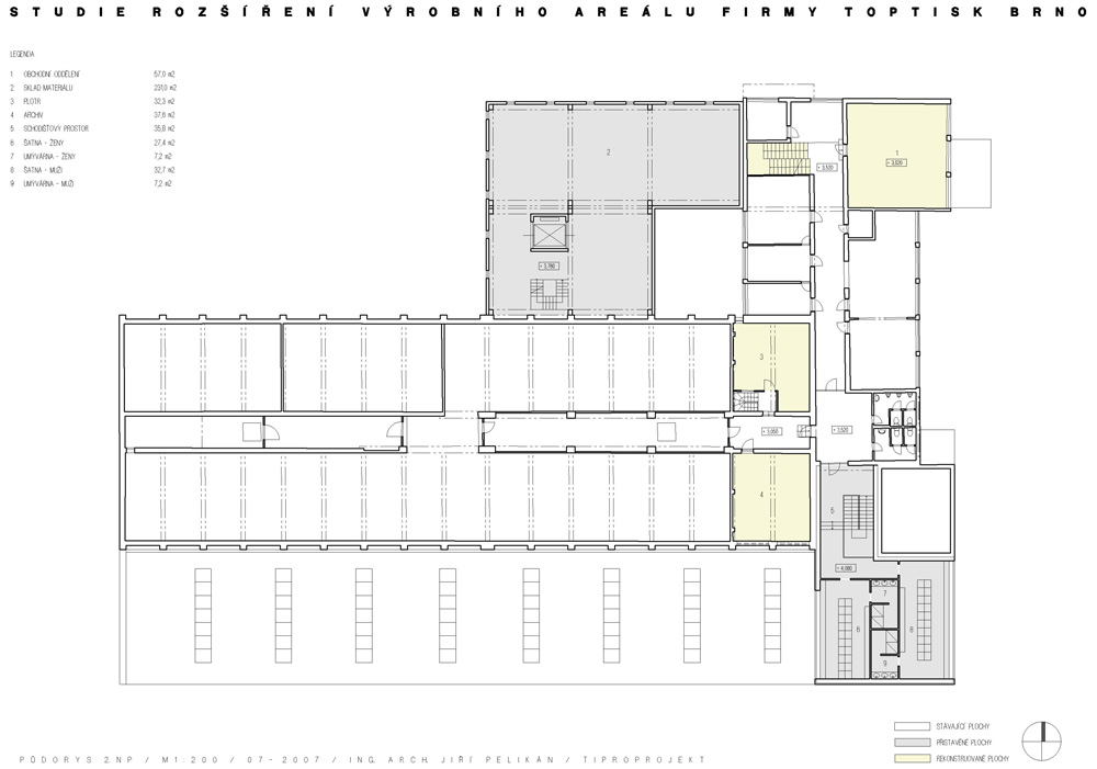
PŘÍSTAVBA DVOU VÝROBNÍCH HAL V AREÁLU TOPTISK BRNO
Vizualizace
(3)
Dokumentace
(5)
ADRESA:
Kaštanová, Brněnské Ivanovice
AUTOR:
Ing. arch. Jiří Pelikán
INVESTOR:
Top Tisk
STUDIE:
2007
PROJEKT PRO ÚR:
2008